4228 Vista Panorama #267
Listing provided courtesy of David Rose of Dream Makers Realty. Last updated 2025-10-30 08:17:22.000000. Listing information © 2025 Client MLS.
Asking Price: $610,000
4228 Vista Panorama #267, Oceanside CA 92057
Community: 92057 - Oceanside
This Townhouse property was built in 1987 and is priced at $610,000. Please see the additional details below.
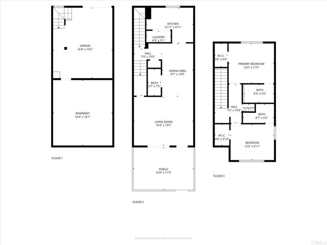
Discover resort style comfort in this beautifully updated 2 bedroom 2 bath townhome in the highly sought after Quail Ridge community of Oceanside. Boasting panoramic mountain and canyon views, this home perfectly blends peace, privacy and convenience. Step inside to find a bright, open floor plan featuring large windows and abundant natural light. Owner recently installed brand new stainless steel appliances, AC condenser unit and washer/dryer package. The primary suite includes a walk-in closet and remodeled en suite bathroom with the secondary bedroom provides flexibility for family guests or a home office. Property has a spacious 2 car garage with direct access to the living area along with tons of additional storage. Residents of Quail Ridge enjoy access to two sparkling pools, spas, a clubhouse and scenic walking trails. Perfectly located minutes from downtown Oceanside, beaches, shopping and dining. Whether you're a first time buyer, downsized or investor this turn key Oceanside gem offers the best of coastal living at an incredible value.













































